آشنایی با نقشهکشی دوربین مداربسته
نقشهکشی دوربین مداربسته یکی از قسمتهای مهم طراحی پروژههای مداربسته است. طراحی و تحویل نقشه به مشتری کمک زیادی به انجام عملیاتهای تعمیر و نگهداری در آینده خواهد داشت. در این مطلب به صورت مختصر با نقشهکشی این سیستمها آشنا میشویم.
در ادامه با گروه حفاظت و امنیت همراه باشید…
نقشهکشی دوربین مداربسته
نقشهکشی سیستم مداربسته چه مزیتهایی دارد؟
تهیه نقشه از سیستم مداربسته مزیتهای زیادی دارد. در پایین به برخی از بزرگترین مزیتهای طراحی نقشه برای سیستم مداربسته اشاره خواهیم کرد:
- ایجاد امکان عیبیابی سریع کابل کشیهای سیستم مداربسته
- کاهش آسیبهای ناشی از تغییرات تاسیساتی به کابلهای سیستم مداربسته
- امکان طرح ریزی گسترش سیستم مداربسته با توجه به بستر آماده شده قبلی
- امکان محاسبه پهنای باند شبکه در سیستمهای مداربسته تحت شبکه
نرم افزارهای نقشهکشی دوربین مداربسته
Microsoft Office Visio
مجریان سیستمهای مداربسته معمولا اطلاعات زیادی در رابطه با نرم افزارهای حرفهای تر نقشه کشی ندارد. از این رو استفاده از نرم افزارهای ساده و اولیه در کنار برطرف کردن نیاز آنها، امکان آماده سازی سریعتر نقشهها برای افراد با اطلاعات نقشهکشی اولیه را فراهم میکند.
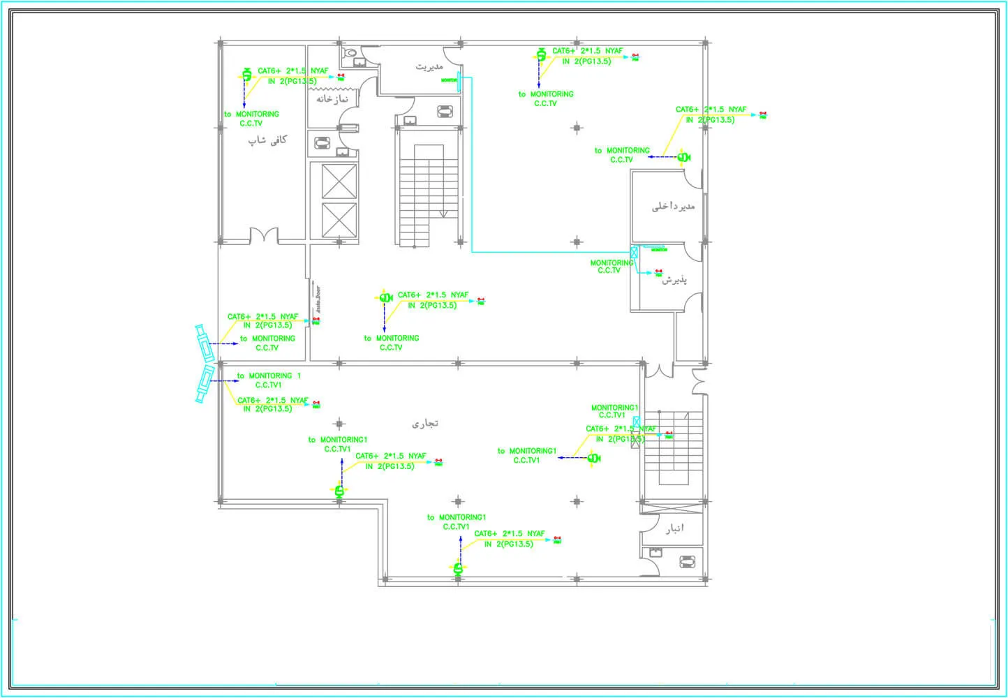
یکی از بهترین نرم افزارهای برای این کار نرم افزار Microsoft Office Visio است. این نرم افزار یکی از زیر مجموعههای مجموعه نرم افزار Office است که دسترسی به آن را بسیار ساده میکند. با داشتن یک مجموعه از شکلها و علائم مرتبط با نقشهکشی و مجموعه مرتبط با سیستمهای حفاظتی این نرم افراز برای کاربریهای عادی کاملا ایده آل است. در زیر میتوانید دو نمونه نقشه تهیه شده با این نرم افزار را مشاهده کنید.

Concept Draw
این نرم فزار نیز تا حد زیادی مشابه نرم افزار Visio است و امکان طراحی سیستم دوربین مداربسته برای افراد عادی را فراهم میکند. نرم افزار دارای مجموعههایی متفاوت از علائم و شکلهای مرتبط با سیستمهای حفاظتی است و قابلیتهای جذابی برای طراحیهای الکتریکی دارد.
برای اطلاعات بیشتر از این نرم افزار میتوانید به وبسایت آن در این آدرس مراجعه کنید.

AutoCAD Electrical
این نرم افزار یکی از مجموعه نرم افزارهای Auto CAD است که به طور تخصصی برای طراحی سیستمهای الکتریکی طراحی شده است. کار کردن با این نرم افزار به سادگی دو نرم افزار بالا نیست اما امکان تهیه نقشههای به مراتب حرفهای تر را فراهم میکند. نرم افزار AutoCAD Electrical دارای مجموعههایی از علائم مرتبط با سیستمهای الکتریکی و مداربسته است. در صورت نیاز میتوانید شکلهای مورد نیاز خود را به نرم افزار اضافه کرده یا آنها را طراحی کنید.

IP Video System Design Tool
این نرم افزار یکی از تخصصیترین نرم افزارهای مرتبط با نقشهکشی سیستمهای دوربین مداربسته است. بسیاری از جزئیات مرتبط با نقشه کشی در این نرم افزار قابل اضافه کردن است. برای اطلاعات بیشتر در رابطه با این نرم افزار میتوانید به وبسایت آن در این آدرس مراجعه کنید.
ورود به سایت